Detall constructiu: grades de formigó i coberta metàl·lica en pati escolar.

Ampliacions |

Reformes

Direcció d’Execució d’ampliació d’equipament docent a Sabadell – Escola del Carme

Rehabilitació de l’Escola del Carme, Sabadell

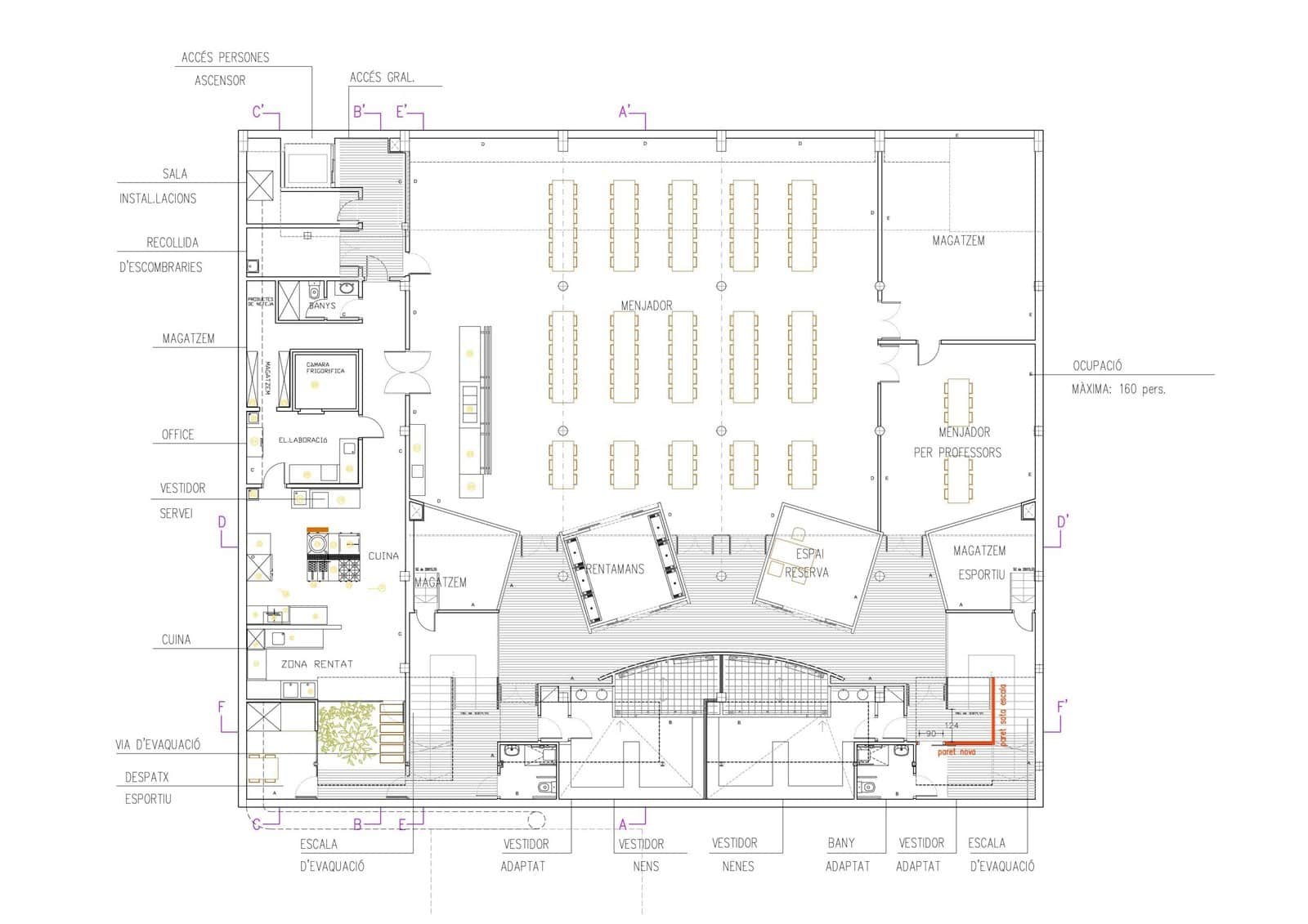
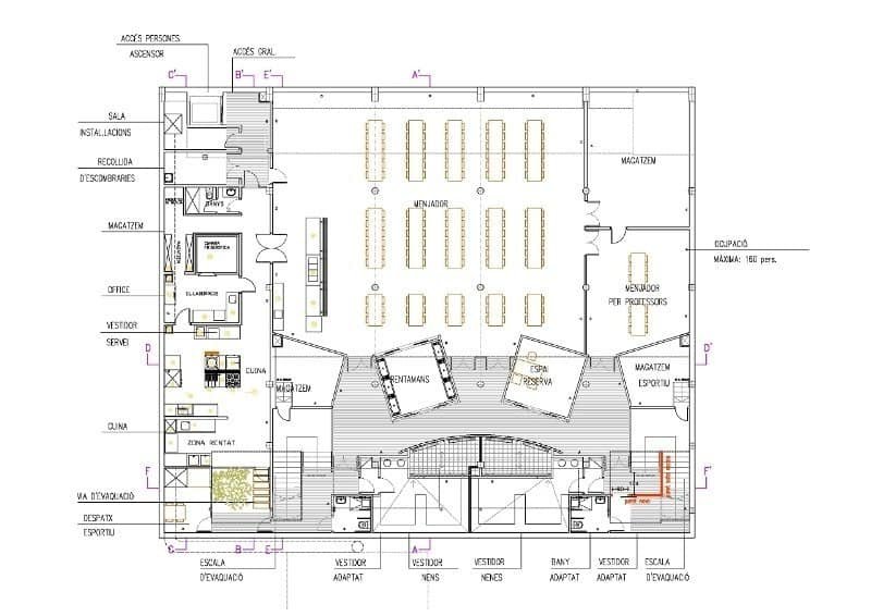
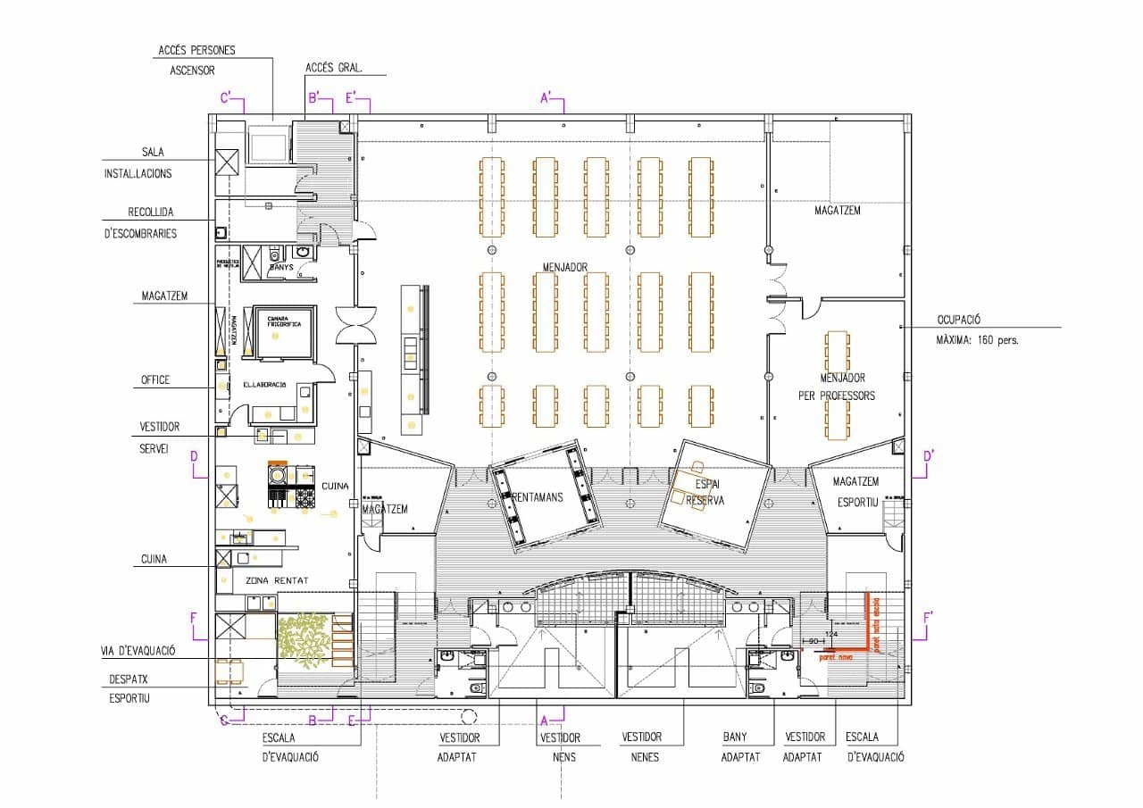
Projecte d’ampliació d’un equipament docent a Sabadell, situat al carrer Josep Renom, consistent en la construcció d’uns nous menjadors amb cuina pròpia i una pista esportiva a la seva coberta, sense reduir l’espai existent del pati escolar.

L’actuació es desenvolupa en un pati existent sense edificació, amb la necessitat de mantenir la funcionalitat de l’espai exterior, resolent l’ampliació en planta soterrani. Aquesta solució permet conservar l’ús del pati, incorporant al mateix temps nous espais per al centre educatiu.

Constructivament, l’edifici es resol amb estructura de formigó vist i elements metàl·lics, amb façanes formades per formigó vist i tancaments de lames d’acer pintat. La coberta es configura mitjançant panells metàl·lics sobre estructura metàl·lica, adaptada a l’ús com a pista esportiva superior.

Un dels principals reptes del projecte va ser executar una nova planta soterrani sense afectar l’ús del pati existent, garantint alhora unes condicions adequades d’il·luminació i ventilació. Per això es van incorporar lluernaris i patis interiors que permeten l’entrada de llum natural i la renovació d’aire als menjadors.

A nivell d’execució, el repte més rellevant va ser el control de l’estanqueïtat i la impermeabilització, evitant filtracions d’aigua de pluja cap a la nova planta soterrani. Es va resoldre mitjançant la impermeabilització completa de la coberta i dels murs perimetrals, sobre els quals es va executar el paviment de formigó de la pista esportiva.

Barcelona Arquitectura va intervenir en la Direcció d’Execució d’Obra, Coordinació de Seguretat i Salut i Control de qualitat, incloent la redacció de l’estudi de seguretat i el programa de control de qualitat.

El resultat és una ampliació funcional que permet dotar l’escola de nous menjadors amb cuina pròpia, mantenint íntegre l’espai de pati i millorant les prestacions del centre educatiu.

Dades del Projecte

Ubicació

BarcelonaSabadell

Any Finalització

2009

Superficie

1200 m²

Serveis Realitzats

Control de qualitatCoordinació de Seguretat i SalutDirecció d’Execució d’ObraEstudi de seguretat i salut

Busques aquest nivell de control tècnic?

Garantim la viabilitat tècnica i econòmica de la teva propera promoció.

Demanar Valoració d’Honoraris